The 44-storey luxury residential tower occupies a prestigious location within the green setting of United Nations Plaza, with views of the celebrated modernist UN Headquarters building, the East River and the New York City skyline. The project is the practice’s first high-rise apartment building in the city and is conceived in the spirit of Hearst Tower, one of New York’s first ‘green’ office towers – more than half of the exterior facade is solid, the rest made up of highly insulated glazing; and its construction will incorporate recycled materials.
The tower’s massing respects the height and scale of its neighbours and the facades are characterised by deep bay windows, which take advantage of the views from the site and broaden the elegant living spaces within. The bay windows are unified by a delicate horizontal grid of stainless steel bands, which wrap around the building and reference the refined New York Art Deco style of the nearby Chrysler Building. The three interconnected volumes of the bays appear faceted in elevation and visually reduce the building’s scale, while emphasising its vertical form. The tower’s jewel-like quality is further enhanced by highly reflective panels, which run vertically between each of the bays.
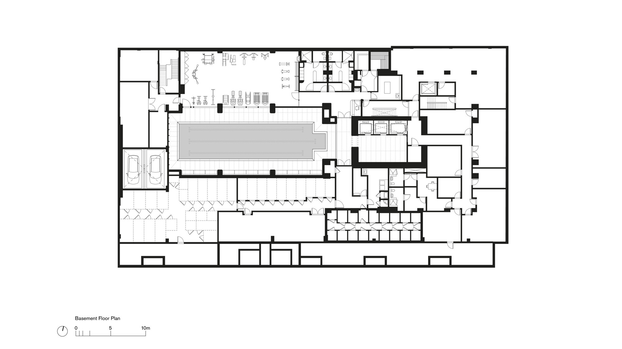
Entrance is via a bracelet of lush planting that surrounds the tower. Inside, the colour palette for the lobby is warm, complemented by granite, marble, wood and an open fire to the rear of a full-height water feature that divides the space. Every apartment is focused on the series of floor to ceiling bay windows and the interiors are luxurious, with generous space for entertaining. Adding a touch of elegance to every detail, the powder room walls are fitted with glazed silk panels in a choice of either bold primary or natural colours. A spa in the basement incorporates a large exercise pool for residents, and the penthouse features an infinity pool, dramatically cut out from the top level of the building.
































