Located at the heart of Battersea Power Station’s Turbine Hall, Apple Battersea integrates a modular design approach that features inclusive, innovative, and sustainable design enhancements.
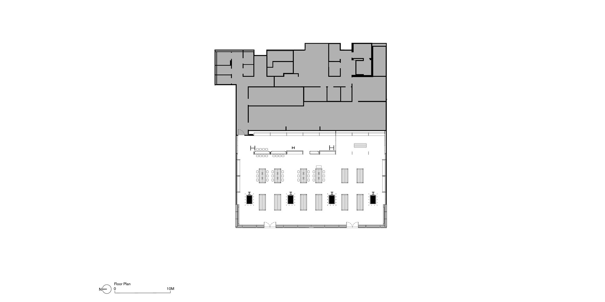
Prefabricated solid timber avenues are an integral part of the system. These modular spaces are designed to accommodate themed avenue bays and counter-based services, within a universal framework. The design includes an Apple Pickup station and re-introduces the Genius Bar, with a reimagined counter for face-to-face conversations during hands-on technical and hardware support. It also features a customer experience area, where visitors can try out devices or customise them to suit their needs. The system adopts an energy efficient displacement air strategy, which delivers conditioned air through the base of the avenues, creating a comfortable environment for staff and visitors.
To extend the life of the store - without significant interventions - and reduce its carbon footprint, the system can be easily modified, repaired and re-assembled to adapt to future needs. The system also makes reductions in petrochemical and carbon-intensive materials. The uniquely designed ceiling is made of biogenic acoustic baffles, minimising the dependency on metals, while the bio-resin terrazzo flooring is created with biopolymers, reducing the need for chemical resins. These measures reduce both the store’s operational energy consumption and the embodied energy of construction. Apple Battersea runs on 100 percent renewable energy and is carbon neutral, like all Apple retail locations.
The system is centred on universal design principles, creating an inviting space where everyone is welcome. It offers varied table and seating heights, as well as access routes that give wheelchair users more space to navigate. For hearing aid users, the store offers a portable hearing loop that can be used anywhere and an additional in-ground version at the Today at Apple table, removing the need for the user to self-identify.
The store in Battersea Power Station is quintessentially Apple, while respecting the historic Grade II* listed landmark. Four central brick columns have been retained, to enhance the character of the space. The system’s material palette of timber, terrazzo, and exposed metal works in harmony with the heritage driven approach to the major redevelopment project. A glazed storefront with bronze framing is in keeping with the adjacent retail units in the Turbine Hall.
The design carefully balances historic and contemporary elements - creating a space which celebrates the building’s industrial past while embracing technological innovations of the future.






























