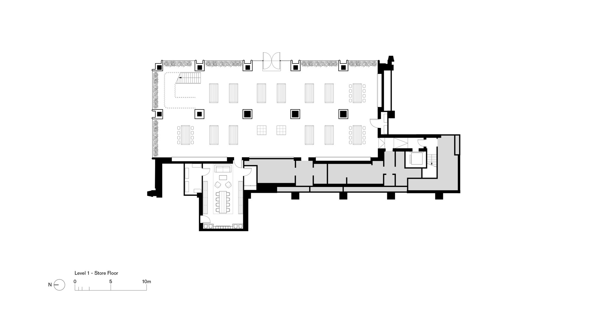
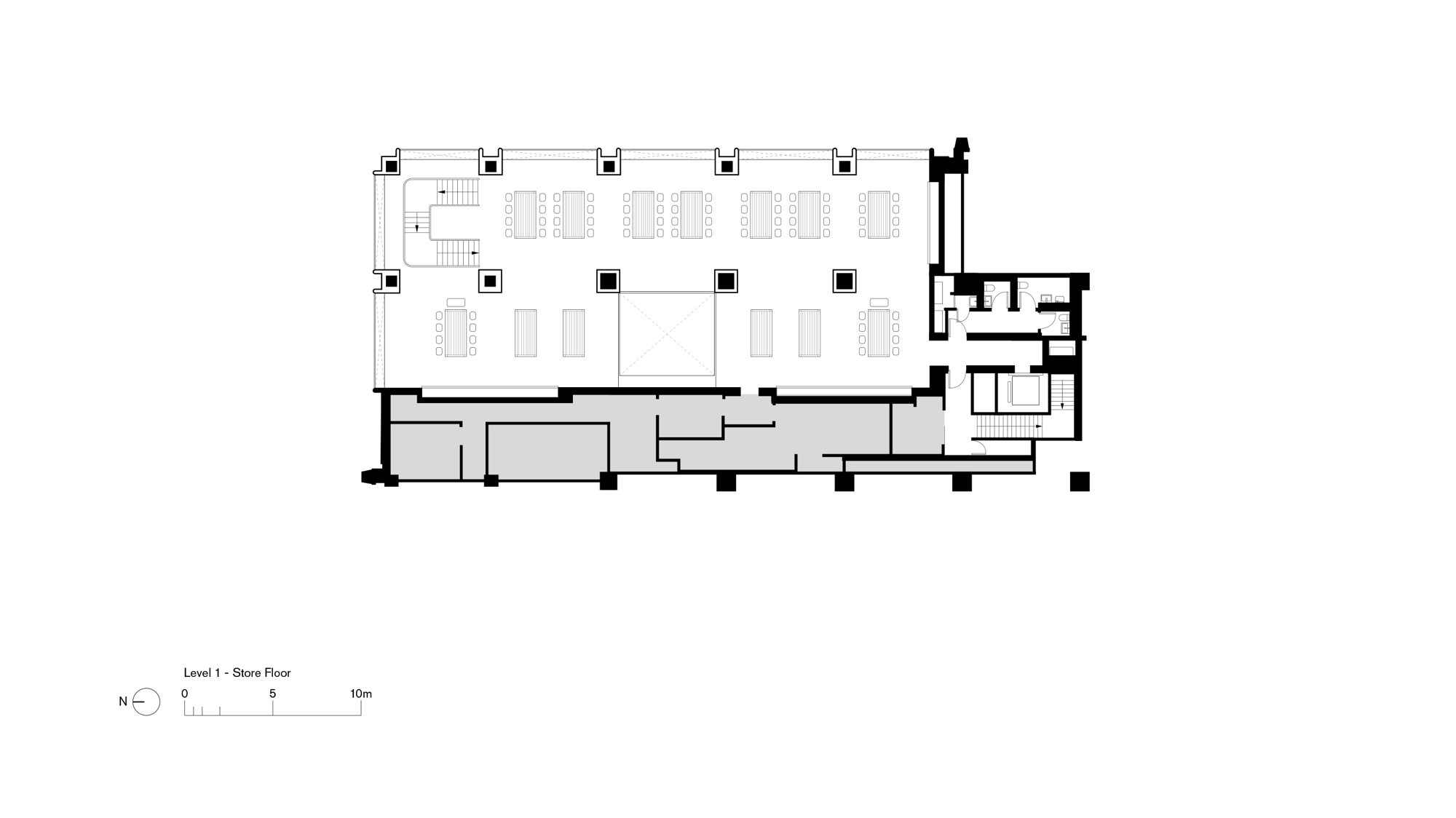
Located in the central district of the city and adjacent to Tokyo Station, Apple Marunouchi is the latest Apple store in Japan. The store occupies the plinth level at the Mitsubishi Building in Marunouchi, built in the 1970s. The dominant structure of the high-rise building offered the opportunity to create a unique facade, which is defined by innovative two-storey ‘vitrines’ providing a distinctive showcase for Apple.
The glass vitrines have been designed to enhance the existing row of perimeter columns that envelop the store. They are made from aluminium that has been specially cast to obtain the 3-dimensional rounded corners. Local bamboo has been specifically planted in the vitrines to add life and greenery to the spaces and accentuate the generosity of space within the store as they rise up to conceal the soffit of the upper level.
The existing tower structure is clad with plasterboard and rendered with white plaster to blend in with the rest of the interior spaces. The entrance is fronted by a large video wall at the far end, which is situated within a double-height space that offers visual connectivity between the two levels of the store.
Access to the upper level is via a sculptural staircase located to the right of the entrance. Clad with white-painted steel and featuring terrazzo treads, the staircase blends in with the light-filled interior. The ceilings are clad with white oak timber that adds a sense of warmth to the space.























