Banque Marocaine du Commerce Exterieur (BMCE) is one of Morocco's leading banks. Prompted by a desire to transform the experience of high-street banking for its customers, the Bank commissioned a series of flagship branches. Their design follows a modular, thematic approach, with variations in scale and landscaping in response to the different locations. While the branches in Casablanca and Rabat reflect their compact sites in the financial and civic centres on Morocco's coast, the Fez branch has subtle details that express the city's artisan heritage.
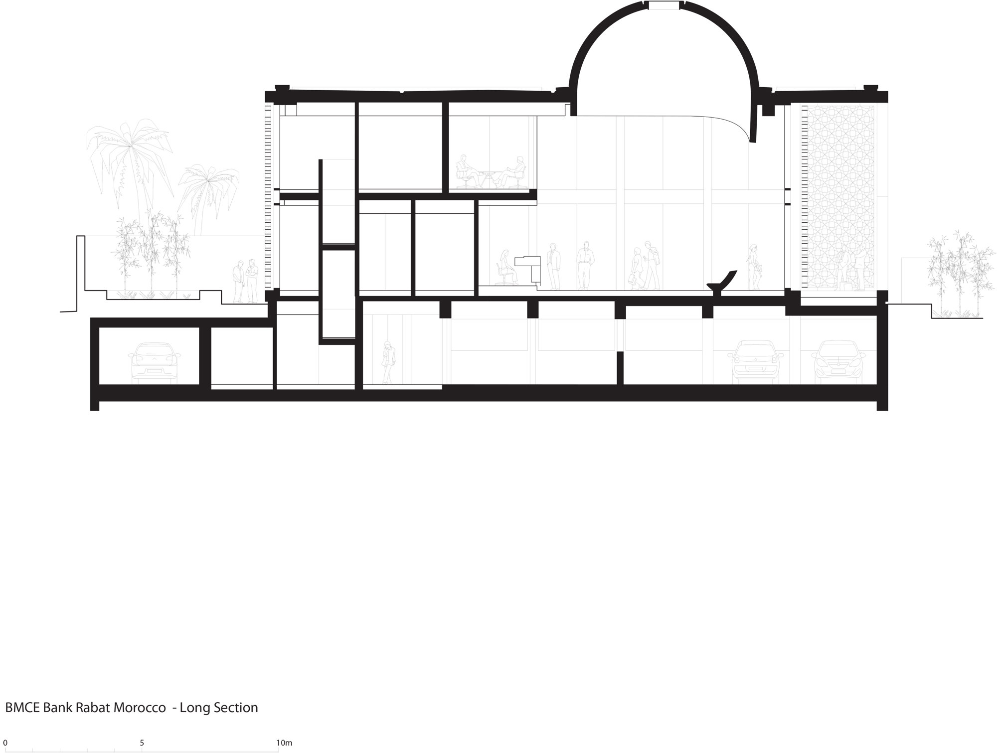
Each of the banks is entered through a colonnade and topped by a dome. The soffit of the dome is rendered in tadelakt, a local plaster technique, and the exterior is clad in zellige - a traditional ceramic tile. Structurally, the buildings comprise a reinforced concrete frame, with bays repeated on a modular grid. The bays are enclosed by glazed panels with deep screens to provide shade and security. The screens are made from a low-iron stainless steel, which is designed to remain cool to the touch, and follow a geometric design based on Islamic patterns. The combination of screens and stone pillars gives the facades the appearance of solidity, in keeping with the often decoratively carved walls prevalent in Morocco's refined Arabic style. While the building envelope relates to the regional vernacular, the interior is contemporary. The dome form sweeps down into the banking hall to create a sculptural curved bench - a distinctive feature of each branch - which varies in width according to the building's size.
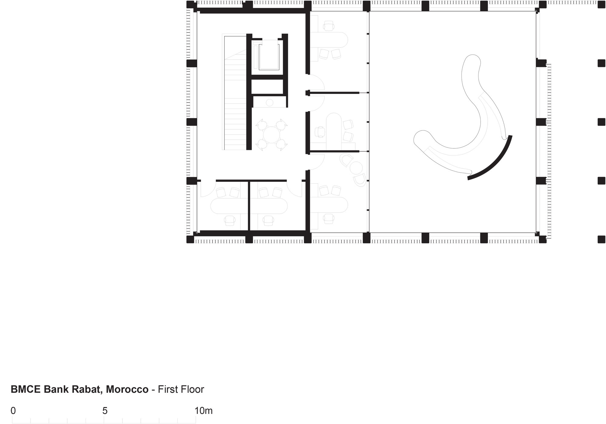
A simple functional arrangement divides the rectangular footprint equally between the banking hall and support areas. The modular grid places landscaped pools, with planting in recessed stone rills, around the exterior of the building, inverting the form of the Moroccan riad, with its central courtyard. The branches are designed to be energy efficient, combining modern technology with centuries-old methods of passive climate control. One example is the use of 'earth-tube' cooling, in which fresh air is drawn into a pipe that encircles the structure below ground and is chilled naturally before being released into the building's ventilation system.





































