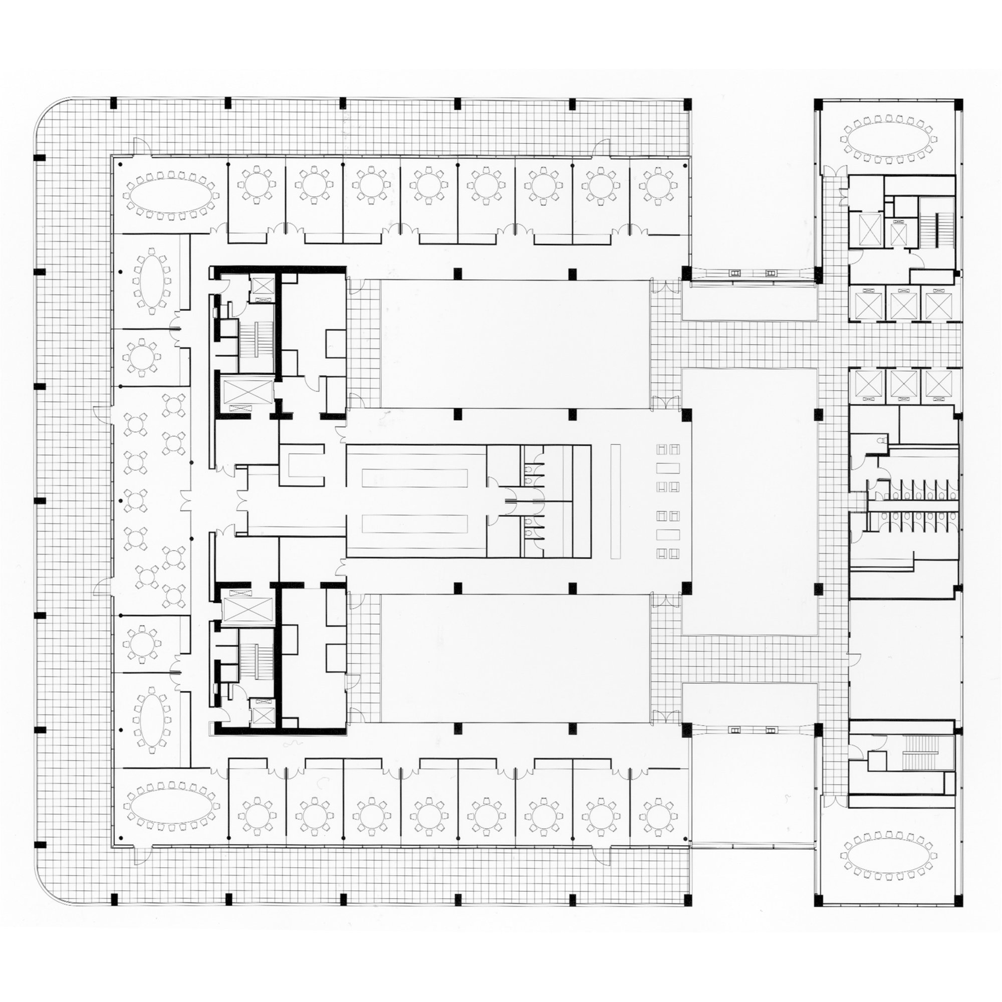
Located alongside the new Jubilee Line station at Canary Wharf, Citibank’s new headquarters occupies a key position in this emerging financial quarter of London and heralds the next phase in the area’s continuing expansion. Following a very rapid development programme, which included the study of an alternative location in the City, the site was developed to meet a complex brief, providing 90,000 square metres of accommodation, including two 3,000-square-metre trading floors.
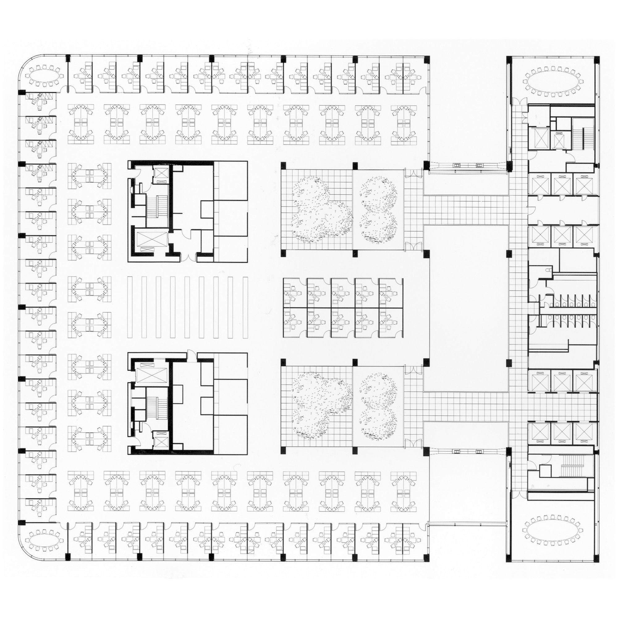
Organisationally the new building comprises two distinct parts: an office building to the west and a service core to the east, linked by glass-balustraded bridges, which ensure that, as with vertical movement via glass lifts, horizontal circulation around the building is achieved along clearly legible light-filled paths. The eastern tower rises higher than the western building in response to different height restrictions across the site. As well as preserving views to the west this allows the building to be opened up around a central atrium, fulfilling the client’s request for broad open spaces to encourage social interaction, and maintaining a key north-south pedestrian route across the site.
Aiming to be simple, elegant and functional throughout, the western building rises seventeen floors above plaza level. Liberated from services, it is able to contain all the Bank’s activities, including the two trading floors, a staff restaurant, an auditorium and a gymnasium, while the four floors below plaza level contain car-parking and IT support facilities. The lofty main atrium is flanked by secondary atria, which step back to allow daylight and fresh air into the depths of the office floors. Highlighting the drama and sense of space of the main atrium, an installation by the artist Bridget Riley is suspended over the atrium’s sixteen floors, appearing to float in space. Forming a tapestry of colours that stand out in obvious contrast to the restrained tones of the atrium, the assembly of aluminium parallelograms can be viewed from the offices, walkways and bridges.






































