Duo is a mixed use development that forms a key part of the Central Park masterplan in Sydney by Foster + Partners. Located between Broadway and Regent Street, the masterplan extends the historic area of Chippendale by reinstating the original grid to unite the formerly closed-off land to the north with its surroundings. The new piece of city is anchored by the retention of a number of existing heritage buildings and historic features.
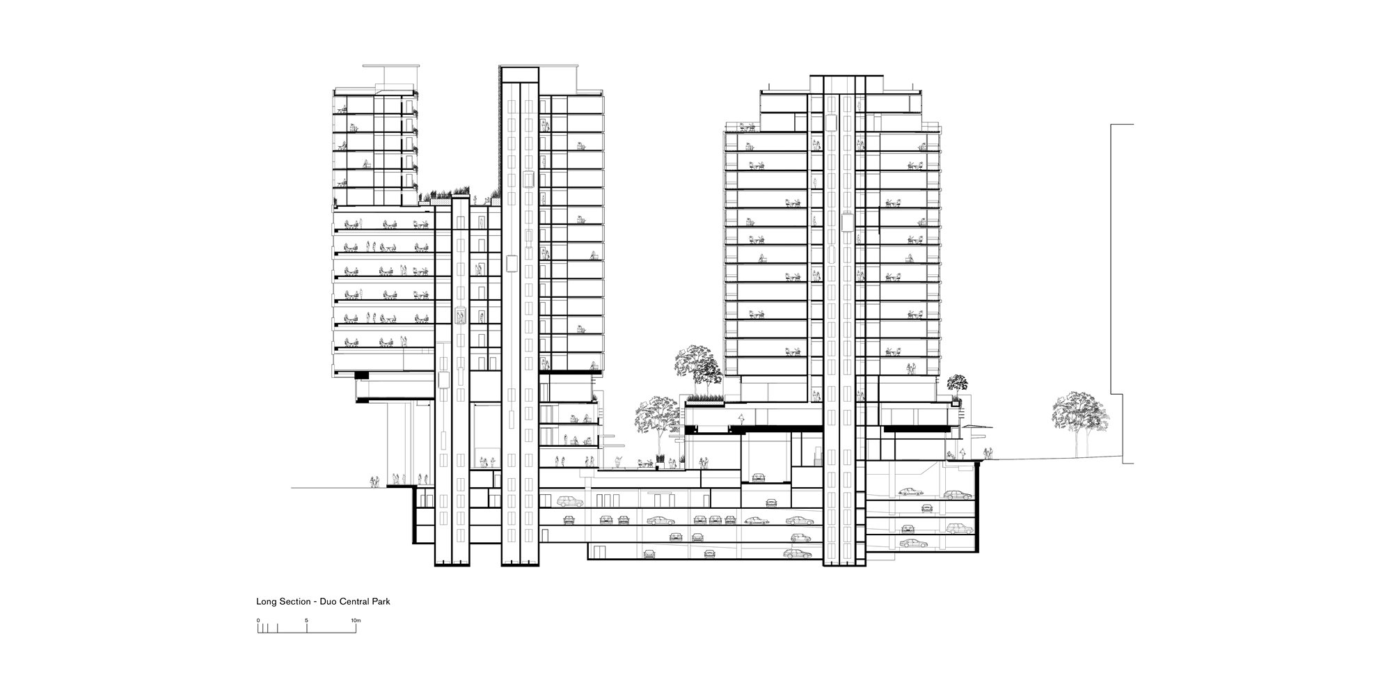
An ensemble of two adjacent buildings at the intersection of Broadway and Abercrombie Street along the northern edge of the precinct, Duo features new public spaces and a retail plaza spread across the podium and “neck” levels of both buildings, reinforcing the existing streetscape along Broadway. The different uses are expressed in the massing and design of the elevations. The overall proportions and materials have been chosen in keeping with the surrounding structures to visually unify old and the new, drawing inspiration from the early 20th century Art Deco style of the Australian Hotel building located on the north-western corner of the site.
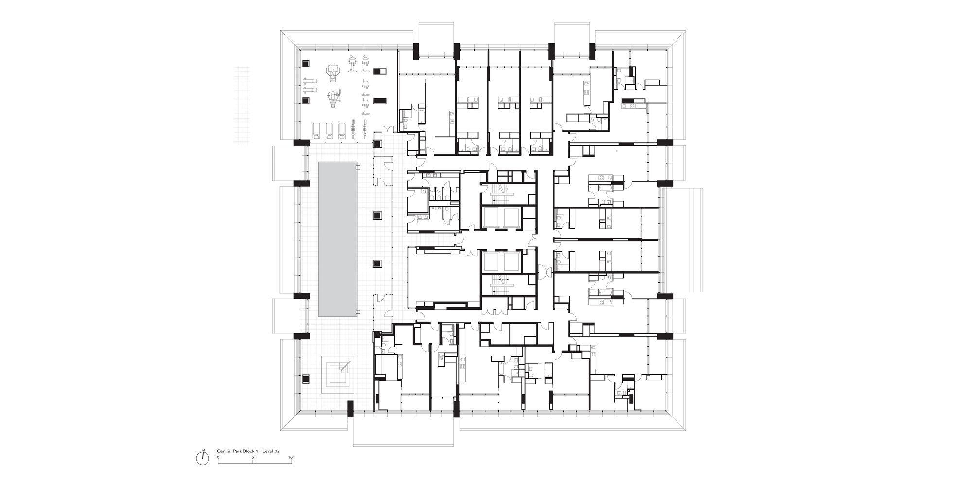
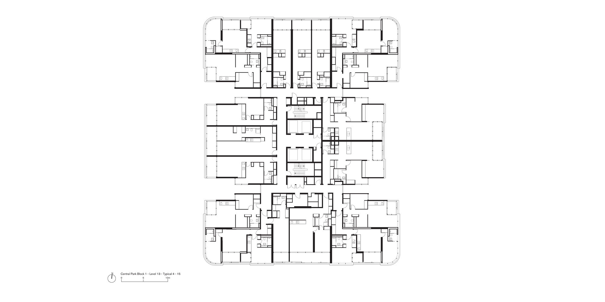
The two buildings are bisected by a new pedestrian promenade lined with cafes and shops, reversing the dominance of vehicles in the area to create a welcoming, pedestrian-friendly community. The development comprises 313 luxury apartments, with residents’ facilities that include a pool and state-of-the-art fitness centre. The corner tower comprises 5000 square metres of office space, a large childcare facility for up to 90 children, and a hotel with the top five floors as apartments. The adjacent building is a 17-storey residential block with stunning views over Chippendale Green and the CBD. Internally, the apartments have flexible layouts that take advantage of Sydney’s wonderful climate, maximising natural light and ventilation throughout.
Aiming to be Australia’s first ‘five green star’ development, the environmental strategy includes green roofs throughout, and the massing and orientation of the buildings are designed to maximise natural light and ventilation. To encourage walking and the choice of low-energy transport systems, the site is close to Central Station and the bus terminal, and is intersected by one of the city’s primary cycle routes.


































