Through the design of a number of company headquarters and office buildings, beginning with Reliance Controls in 1966, the practice has consistently encouraged companies to adopt flexible, non-hierarchical working environments. In the design of its European Headquarters, the leading computer-game software development company Electronic Arts wholly embraced this philosophy. The headquarters sets new standards in this fast-moving industry, providing high-quality workspace, a state-of-the-art media centre for presentations, and an extensive range of on-site facilities.
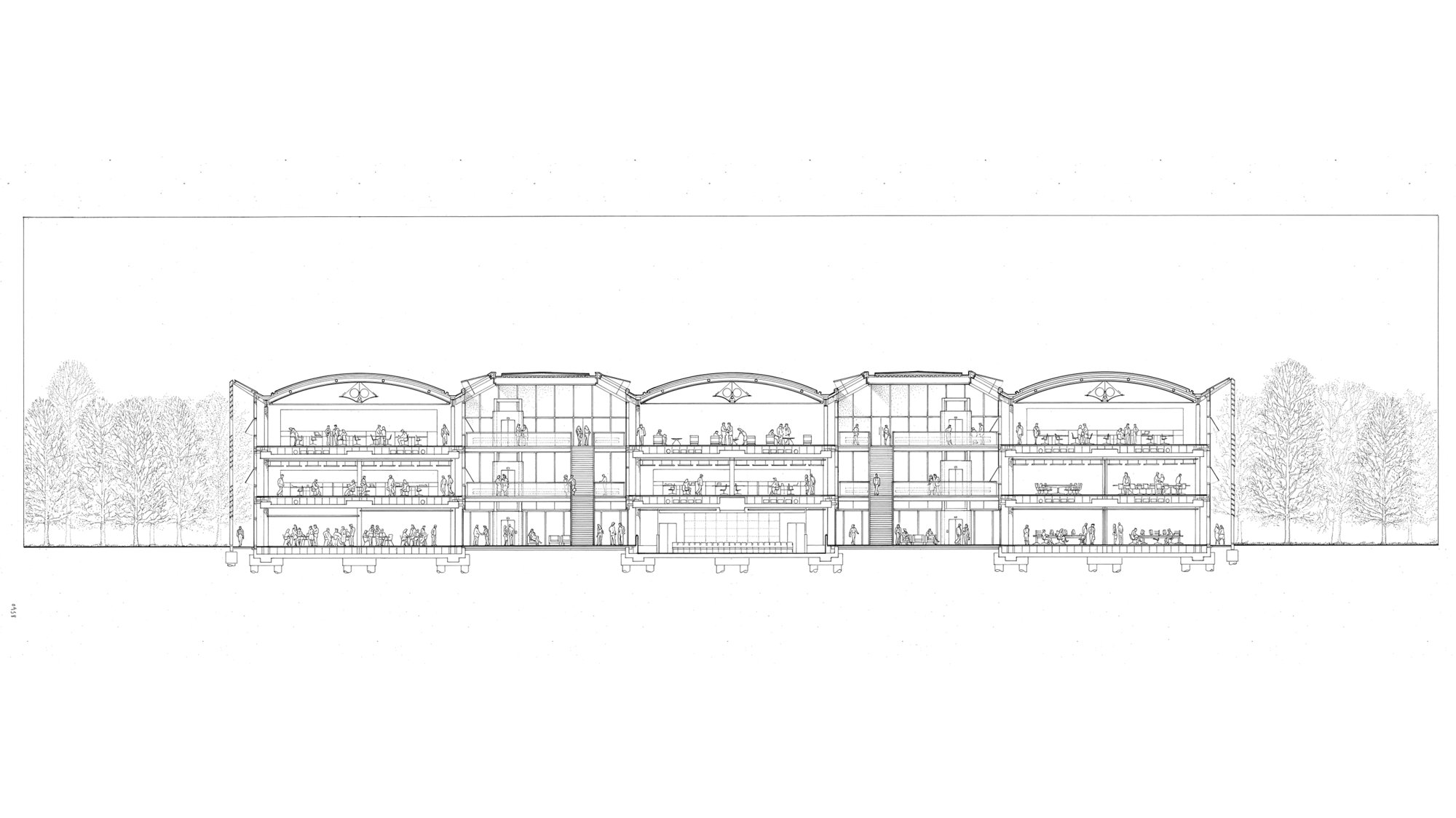
Bound to the north by an eighteenth-century lake, the building comprises a group of three-storey office blocks arranged as ‘fingers’, projecting into the landscape. These fingers are linked by a sweeping glass wall that encloses a street-like atrium. As an animated showcase for Electronic Arts’ work and the social focus of the campus, this atrium provides primary circulation at ground level and forms an environmental buffer between the offices and the landscape beyond. Electronic Arts’ staff takes pride in working as a family with common values. In keeping with this ethos, a huge range of facilities is provided, including games arcades, a gym and sports pitch, a library, a bar and a 140-seat restaurant. With this wealth of leisure options, staff members have joked that the experience is like ‘homing from work’.
In tandem with these programmatic elements, the building also satisfies a number of complex technological criteria. In offices equipped with large amounts of hardware, cooling and ventilation are the chief environmental concerns. As a result, the building employs a low-energy environmental strategy and a range of new-technology building systems. Comfortable conditions are maintained by combining displacement ventilation with natural cooling from the high thermal mass of the building’s exposed structure. When supplementary ventilation and cooling are required the building management system can simply open the windows or, on the very hottest days, switch on the air conditioning. Heat gain is minimised by extensive use of brise-soleil as part of the low-energy facade design, so that the whole building, almost like a domestic space, becomes comfortable and controllable whatever the season.

























