View the 360 tour
Building on the successful partnership developed during the Hankook Technodome project – the company’s integrated R&D centre in Daejeon – Foster + Partners was asked to design Hankook’s new headquarters in Pangyo, on the outskirts of Seoul. The new building embraces several themes that are symbolic of Hankook’s desire to create a dynamic office environment that supports flexible working styles, as the company looks towards the future. The building serves as a catalyst for change for the company’s ongoing efforts to inculcate a progressive corporate culture.
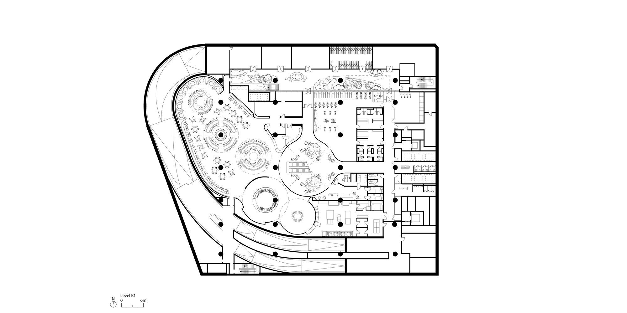
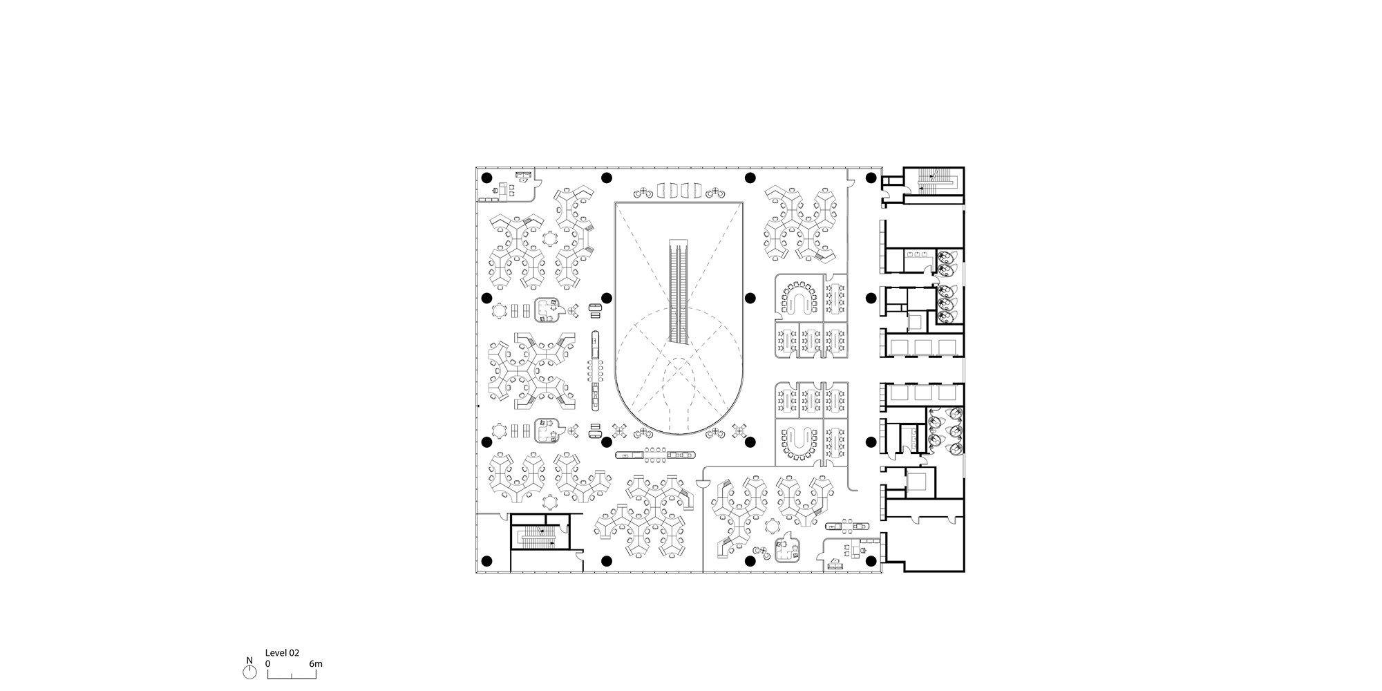
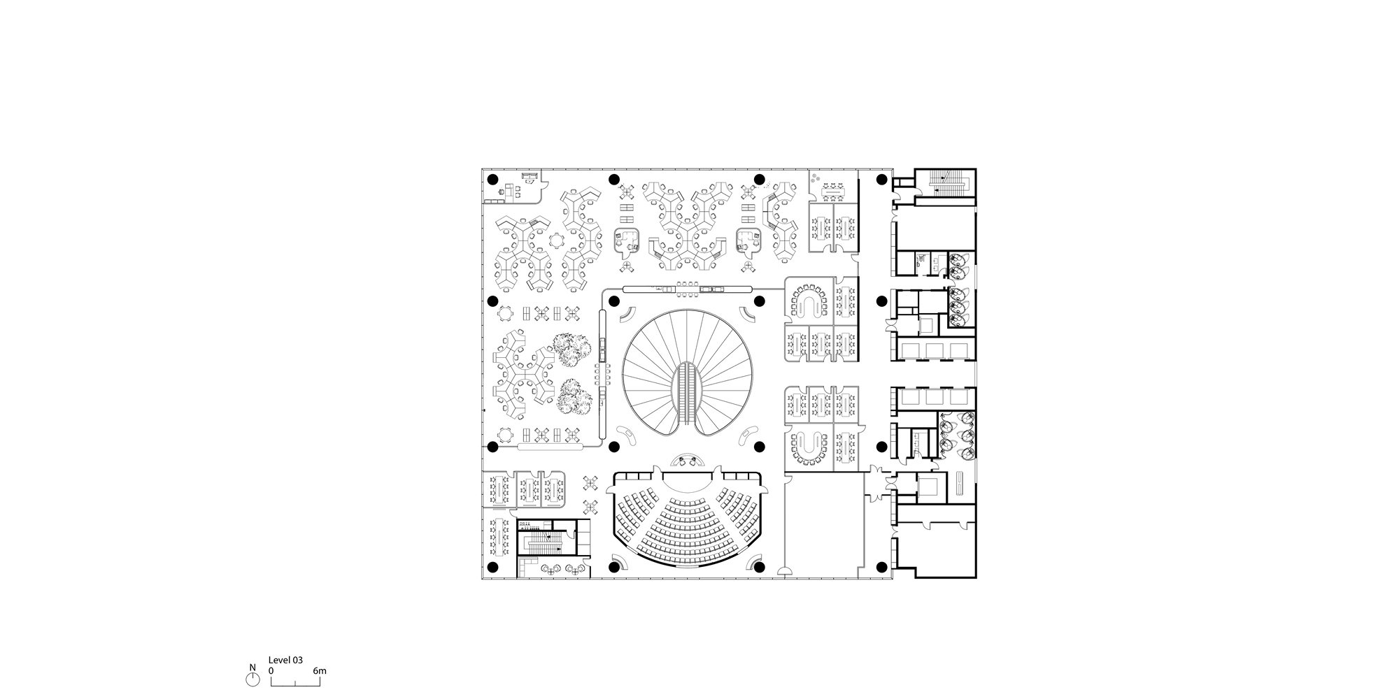
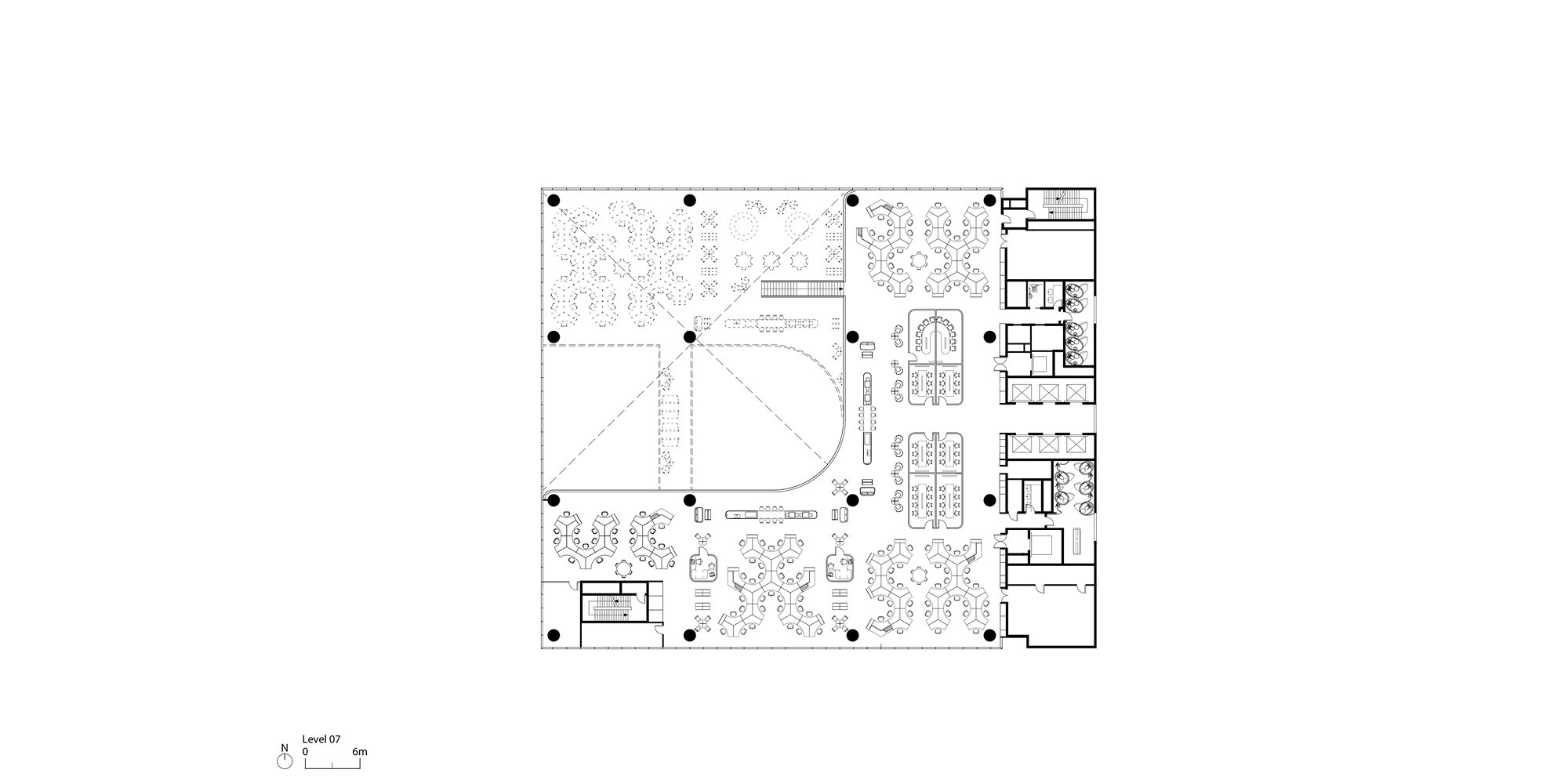
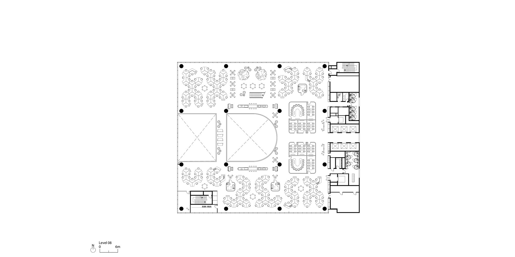
The new headquarters reflect Hankook’s development as a global brand, echoing the excellence in engineering that the company represents. The ten-storey building houses the Hankook offices and its subsidiaries, alongside a state-of-the-art business centre with a 175-seat auditorium. The floorplates spiral around a central atrium, creating spaces of differing heights throughout the building. The dynamic volume generates visual connections across the different levels encouraging staff interaction, while also letting natural light deep into the heart of the building.
The building façades have been carefully designed to optimise the use of natural light. Glass louvres are wrapped around the building at varying levels of density to moderate the indoor light levels. For instance, the communal and social areas are designed to be brighter and more relaxed, while the workspaces have stricter controls on light levels complemented by an intelligent artificial lighting system. It this way, the façade responds to the activities taking place inside the building, also giving the building a unique visual identity.
Through its warm material palette, naturally lit spaces, and flexible workspaces, the design aims to create a positive experience for the company staff. Nature plays a vital role in the success of the workplace; indoor trees define breakout spaces on each level with greenery travelling to the top of the building. Overlooking the central atrium, the breakout spaces are designed for informal meetings and short breaks, while the open-plan workspaces can be configured organically to promote collaboration between different teams. The flexible layouts enable the building to adapt to changing needs over time, incorporating new ways of working as technologies evolve.
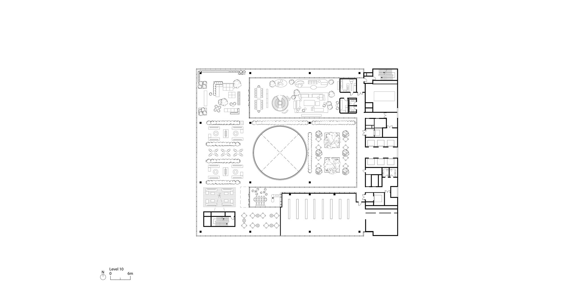
To break down the traditional hierarchical barriers and create a more egalitarian workplace, top-level executives are co-located with their teams on different levels. An executive business lounge on the top floor provides a space for company executives to meet informally, which promotes interaction between the key members, and enables a more fluid flow of information within the company. The building is sandwiched by social spaces, with the healthcare facilities, staff restaurant, and gymnasium in the first basement, and a landscaped terrace and staff café on the roof. The roof garden takes advantage of unobstructed views across the Pangyo area, offering a unique space for company events.








































