In the spirit of the Government’s Academy Programme, Langley aims to raise academic standards by reinventing the school experience. Sponsored by the Arbib Foundation, the school caters for 1150 students between the ages of 11 to 18 and introduces an innovative curriculum, which embraces unusual subjects such as forensics. The building itself forms part of the learning experience, articulating the educational themes of scientific enquiry, museum curating and sport: science laboratories are revealed; the services are exposed and energy use of the building is scientifically chronicled and displayed; and the visual links with the playing fields create an intimate relationship between the interior and exterior.
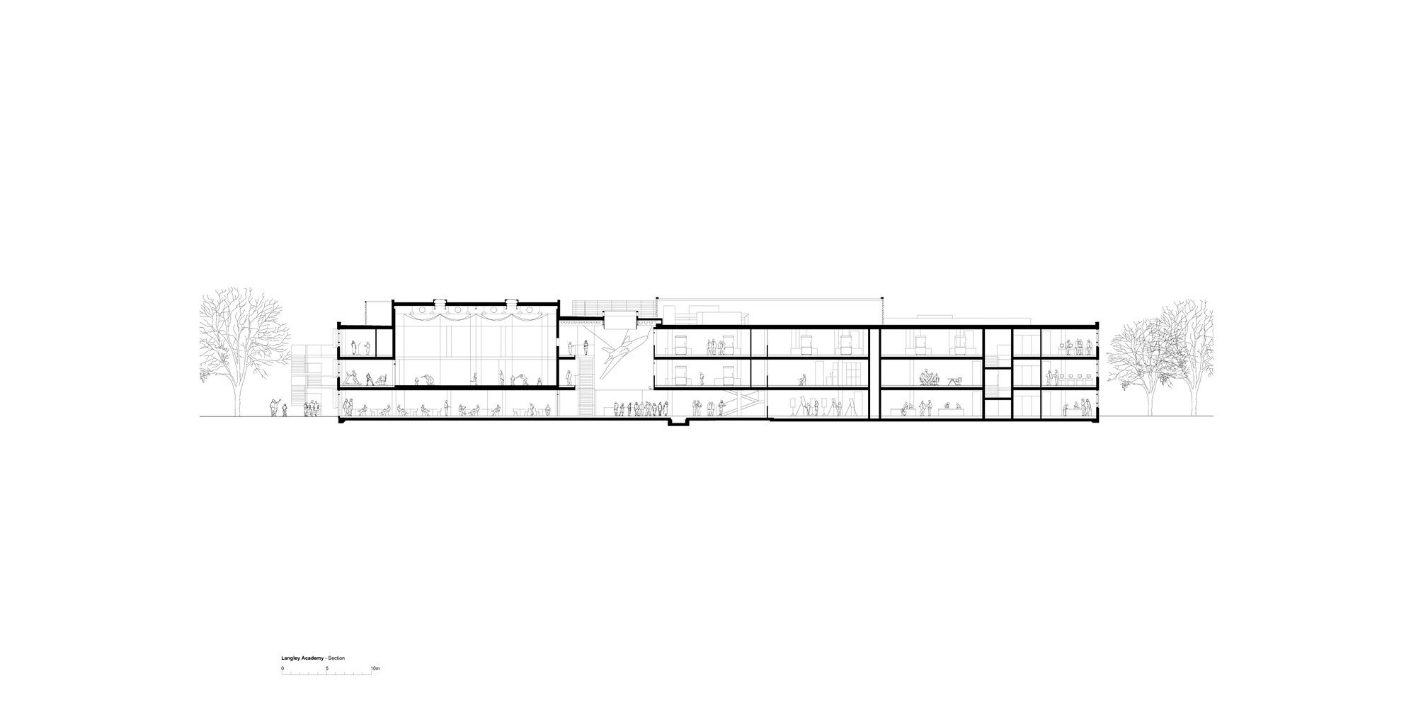
The central focus of the Academy is a large, open, flexible entrance atrium, which is used for assemblies and as an exhibition space for loaned museum exhibits and schoolwork – pupils are encouraged to learn about curating exhibitions through direct experience of putting displays together. Inside the atrium are three yellow drums, raised above the floor on circular columns. These two-storey pods house the Academy’s ten science laboratories and, placing their activities on display, reinforce the importance of science teaching. Also visible is the plant room, whose digital displays are behind a glazed panel in the atrium, allowing students to scrutinise energy use – the building’s environmental features save 20 percent in water consumption and approximately 150 tonnes of carbon per year compared to a traditional academy.
Langley is a form-based Academy and classrooms are configured around two ‘fingers’, which extend from the atrium and enclose internal courtyards for art and IT, as well as defining and sheltering an external play area. The classrooms are highly flexible to support a variety of formal and informal teaching methods and provide adaptable rooms for out-of-hours use by the community. A dedicated sports and culture block, adjacent to the atrium, contains specialist facilities for music and drama: a fully equipped theatre, a TV and sound recording studio, sound-proof rehearsal space, a sports hall and lecture theatre. The Academy’s exterior is clad in sustainably sourced timber panels, which have naturally weathered from an orange to a silver shade, and harmonise with a horizontal and vertical arrangement of timber brise soleil.























