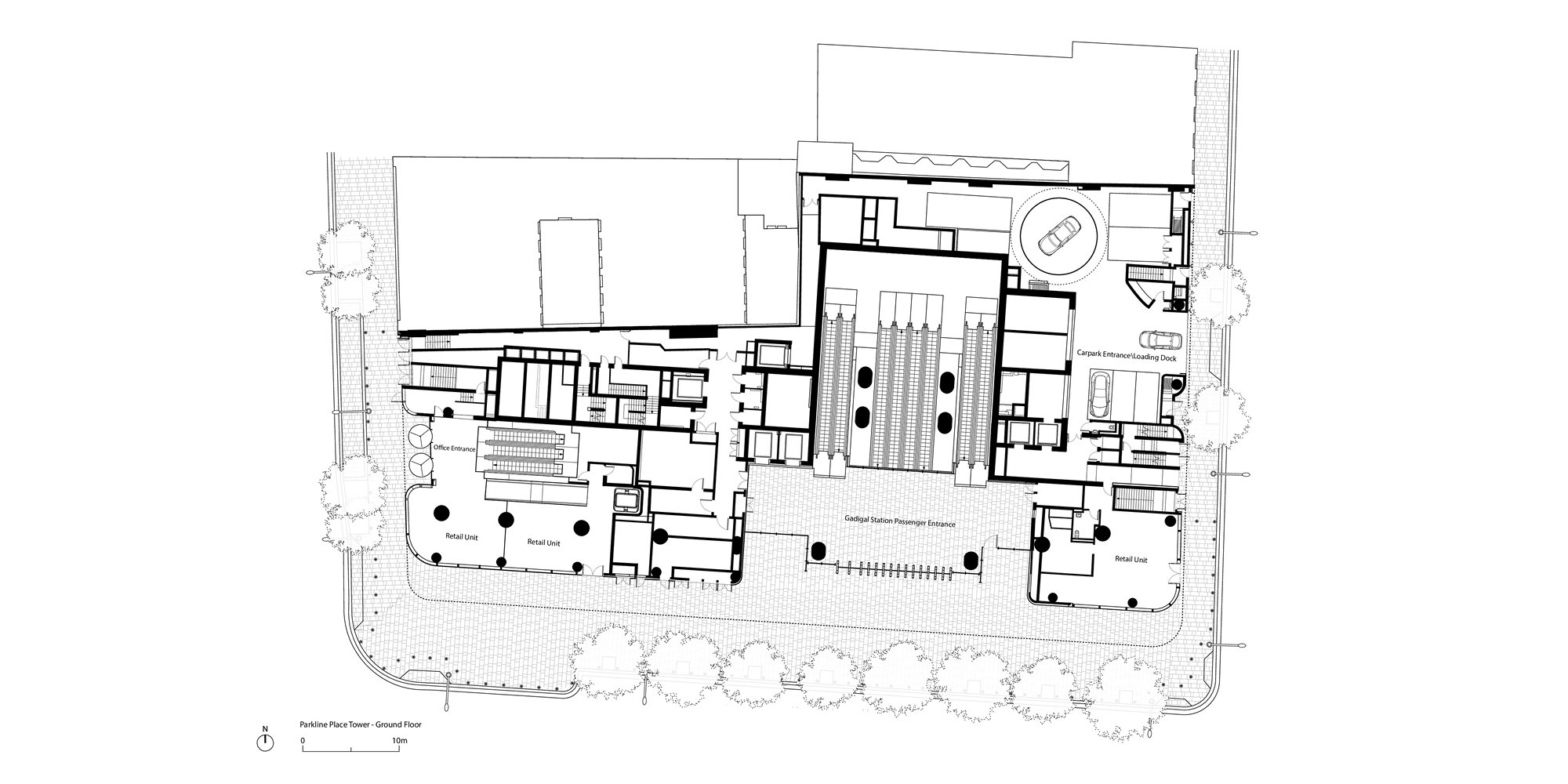
Parkline Place is a 39-storey commercial tower located immediately above the northern entrance of the new Gadigal Station in Sydney, strategically located at the junction of the city’s southern CBD and the Midtown retail precinct.
The north station entrance plaza naturally fronts onto the tree lined Park Street which is one of the most prominent east-west cross-streets in Sydney. The entrance is celebrated by a glass veil which allows daylight to flood the station plaza concourse throughout the day. Above this ‘veil’, the tower has been articulated into three vertical blocks with curved corner glazing. A vertical recess in the facade continues seamlessly through the full height of the tower and is centred directly on the station entrance veil. This urban scale massing creates a connection between the station and the tower, articulating the south elevation of the tower. The entrance lobby has a strong vertical emphasis and a triple height volume that leads up through a mezzanine floor of shops, restaurant and cafes to the commercial lobby space.
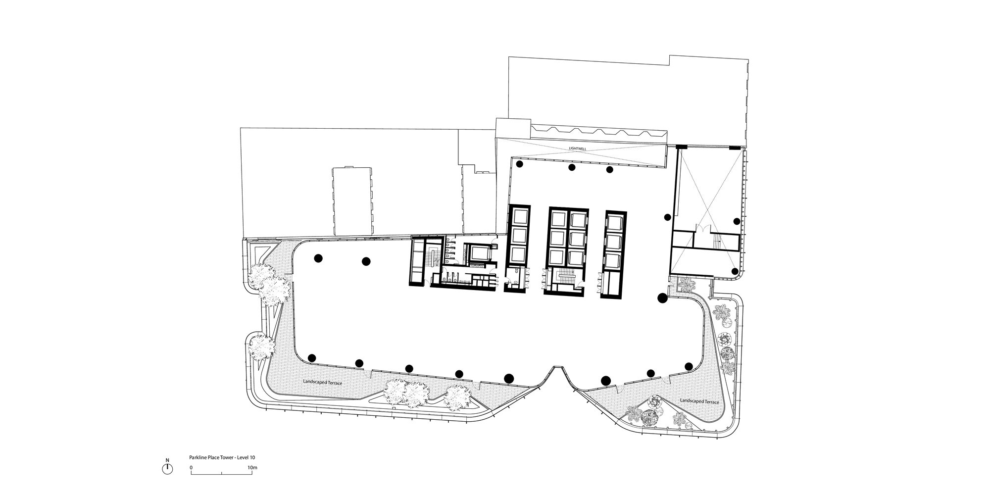
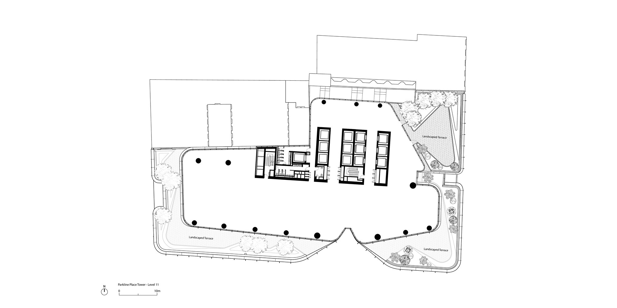
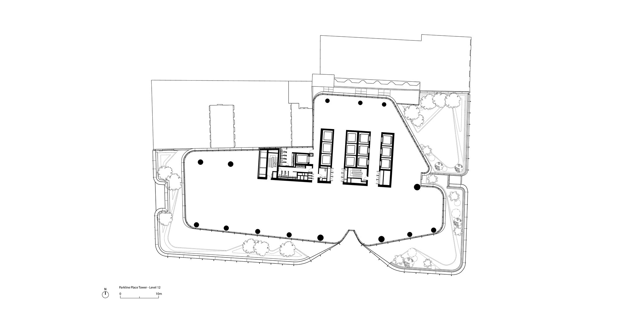
The tower features a podium whose datum follows the building heights of the two heritage listed buildings adjacent to the site on Pitt street and Castlereagh Street. The use of a sandstone and bronze palate of materials link the new buildings to these and other surrounding heritage buildings in the area. The massing has been carefully crafted to accentuate the building’s functions. The large flexible floorplate has two banks of lifts in a central core, allowing for continuous uninterrupted views of the surrounding parks and Sydney Harbour. The office spaces have been designed to allow interconnecting stairs, social hubs, breakout spaces, client meeting rooms and interaction spaces enriching the workspace.
The primary elevation of the tower faces south with very little solar exposure and has minimal vertical sunshades to deal with low-angle early morning sun. On the east and west elevations, the glazed area is substantially reduced to reduce heat gain with an array of solid and transparent horizontal ribbons that help manage the high sun and maximise views to the parks and beyond.











































