Barangaroo Station improves access to the Walsh Bay Arts and Culture precinct as well as the Barangaroo precinct’s public, residential, commercial and entertainment areas and ferry hub. It services the residential areas at Millers Point, Walsh Bay and future residents of Barangaroo, providing high quality public transport access to Sydney’s latest destination. The station will also improve pedestrian connections to the northern part of the Sydney CBD, The Rocks, and alleviates congestion at Wynyard and Martin Place stations.
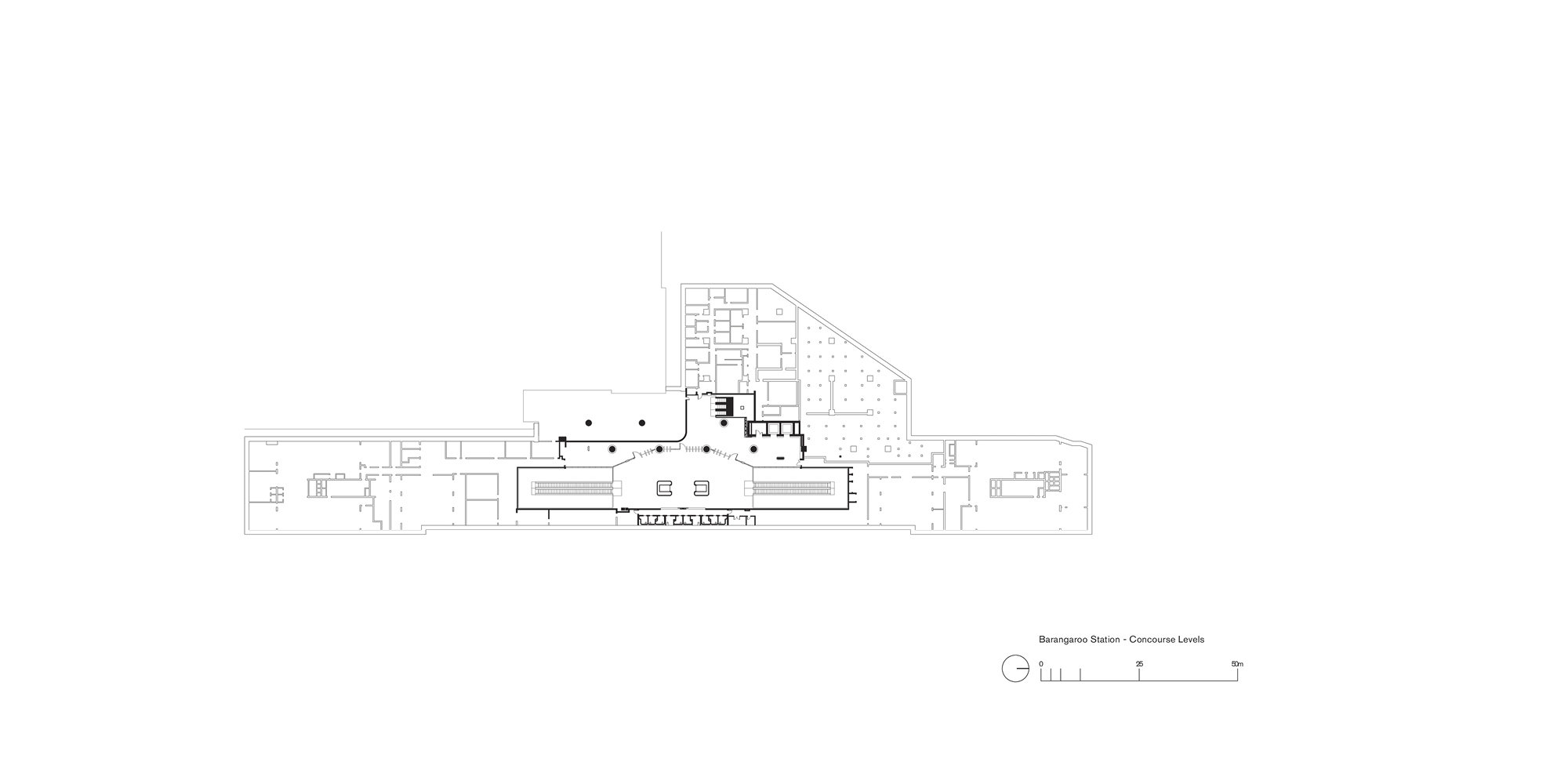
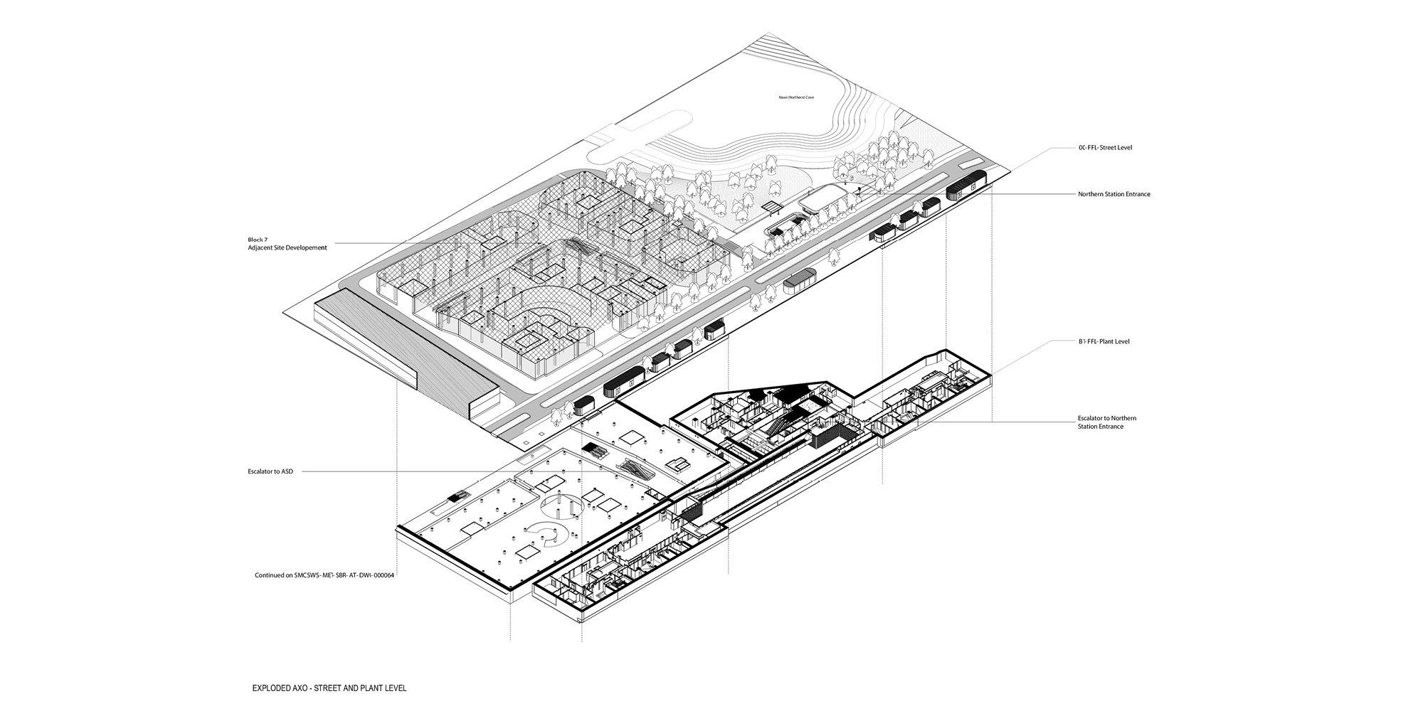
The station has two separate entrances and the platform is located approximately 20 metres below street level, at the north end of Hickson Road in Millers Point. The first entrance opens onto Nawi Cove and is made up of two components: a bank of three escalators, which are covered by a canopy, and a pavilion housing two lifts. The design allows clear lines of sight across the precinct to Nawi Cove and to the harbour beyond. A second future entrance has been designed to provide a direct connection from the concourse into the Barangaroo Central development.
The concourse floor is a white terrazzo, while the walls of the station are clad in split-face local sandstone, which also features in the adjacent Headland Park landscaping. An installation of steel and copper trees by the artist Khaled Sabsabi animates the station concourse.
The redevelopment of the Barangaroo precinct has been one of the most significant urban renewal projects in Sydney in recent times. The precinct was named after the Cammeraygal woman, who was a powerful and influential female leader of the Eora Nation. The Traditional Custodians, the Gadigal, used this land for hunting; the harbour for fishing, canoeing and swimming; and the foreshore as a place of congregation.
Sydney Metro is Australia's biggest public transport project. Working as part of the METRON consortium, the practice completed preliminary designs for five stations on the Sydney Metro City & Southwest line. This initial scope defined the passenger experience, considered the integration of the oversite developments, and outlined how each station would connect with its wider precinct. The practice then took Barangaroo and Gadigal stations from preliminary design through to construction phase services.

























