Located at the north-eastern corner of the Park, within the precincts of Kuala Lumpur City Centre - Kuala Lumpur's 'city within a city' - The Troika development combines apartments, offices, shops and restaurants within a single complex, with the aim of promoting a densely planned approach to living and working in the twenty-first-century city. The project comprises three apartment towers - of thirty-eight, forty-four, and fifty storeys respectively - which together form the tallest residential development in Malaysia.
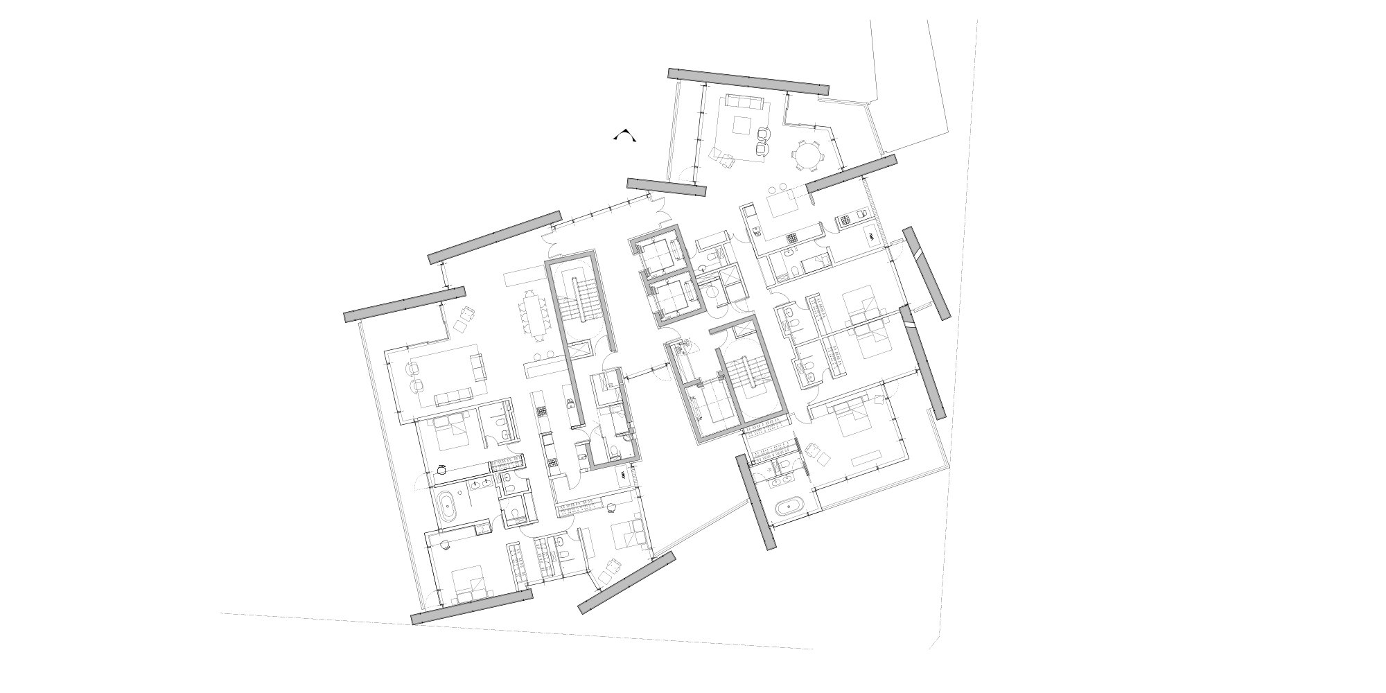
The twisting geometry of the three towers evolved gradually through detailed modelling analysis, their forms being sculpted to respond organically to the neighbouring buildings and to maximise the dramatic views of the Park, the Petronas Towers and the surrounding city. The unusual structural system consists of slender concrete sheer walls, which support stacked blocks that are able to rotate subtly to allow the primary living areas and balconies in each of the 230 apartments to focus on the best available view. The arrangement of the sheer walls also offers great flexibility, generating apartments with a wide variety of orientations and plan sizes. Within each apartment, the internal organisation is kept fluid in order to facilitate individual planning options. Many areas are self-shaded by the overhang of the apartment above, which provides shelter on the balconies. Sky bridges link the three towers at Level 24 to create a sky lobby with an unrivalled panorama of the fast-changing Kuala Lumpur skyline.
At ground level, a four-storey perimeter building contains a mix of offices, shops and cafés and frames a landscaped courtyard. Kept entirely free from cars, the courtyard forms the heart of the development and offers a tranquil urban oasis. Residents enter through the courtyard via a grand entrance on Jalan Binjai, which leads to lift banks on individual floors that are shared by two apartments each. At roof level, the perimeter building provides a variety of recreational facilities for residents. Linked by shaded arcades, and accessible throughout the day, they add a further level of amenity to high-rise urban living.

























