View the 360 tour
The redevelopment of the iconic Transamerica Pyramid Center gives a new lease of life to one of the most recognizable landmarks and the second tallest building in San Francisco. The project also expands and upgrades the adjacent Three Transamerica (545 Sansome) to a contemporary high-design office building.
Located in one of the world’s premier gateway cities, and a symbol of San Francisco’s ambition, the Transamerica Pyramid Center encompasses an entire city block in the Financial District. The Transamerica Pyramid, designed by celebrated futurist architect William Pereira and completed in 1972, is emblematic of the skyline. The broader site consists of two additional buildings – Two Transamerica (505 Sansome Street) and Three Transamerica (545 Sansome Street), and the famed central Redwood Park.
The new design revitalizes and restores the historic Redwood Park, while tying all three buildings together through a series of strategic interventions at ground level, creating a vibrant new destination in the heart of San Francisco, while respecting and celebrating the unique heritage of the site.
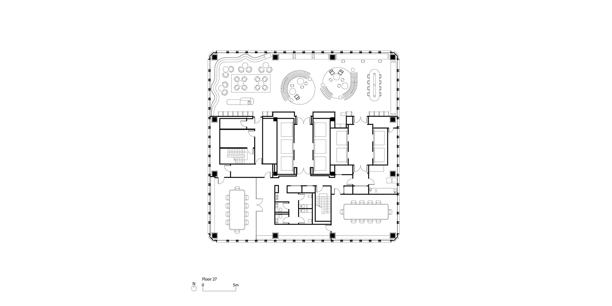
The office is reimagined as a living space, with a sophisticated emphasis placed on comfort, hospitality, and flexibility for tenants and guests. In addition to the on-site private members club CORE, hospitality grade amenities and service elevate the offering. Further incentivizing the return to the office, retail is carefully curated and two floors in the middle of the tower are dedicated to wellness, a lounge and conferencing facilities - all with panoramic city views. Additionally, the top floor below the spire culminates these amenities with an enchanting private bar and lounge.
Redwood Park – which consists of nearly 50 mature redwood trees transplanted from the Santa Cruz Valley to the site in 1974 and now over 100 feet tall – is also upgraded and additional landscape activates the site perimeter. Adding seasonal color to the space, Mark Twain Street - the alleyway from Sansome Street - is lined with plum blossom trees, leading up to the base of the pyramid featuring curated cafes, shops and restaurants.












































