Xiamen Airlines Headquarters tower is located at the heart of Xiamen Cross-strait Financial Centre Masterplan in the Eastern Huli District. The headquarters is part of a new complex designed by the practice, including an adjacent hotel tower and Xiamen Airlines Plaza, which is a new civic space for the city. The two towers are directly connected by the plaza and act as a marker for the whole district.
Inspired by the Wuyi Mountains and iconic paintings of the Chinese rock mountains, the new headquarters rises vertically through the landscape, creating a dynamic composition that is instantly recognisable. The tower’s split form conveys movement, and its materiality is strongly expressed. Metal panelling reflects varying light conditions, while anodised aluminium adds texture and depth. The building’s expressed glass lift shafts animate the north-western elevation, making the tower a dynamic focal point from the highway.
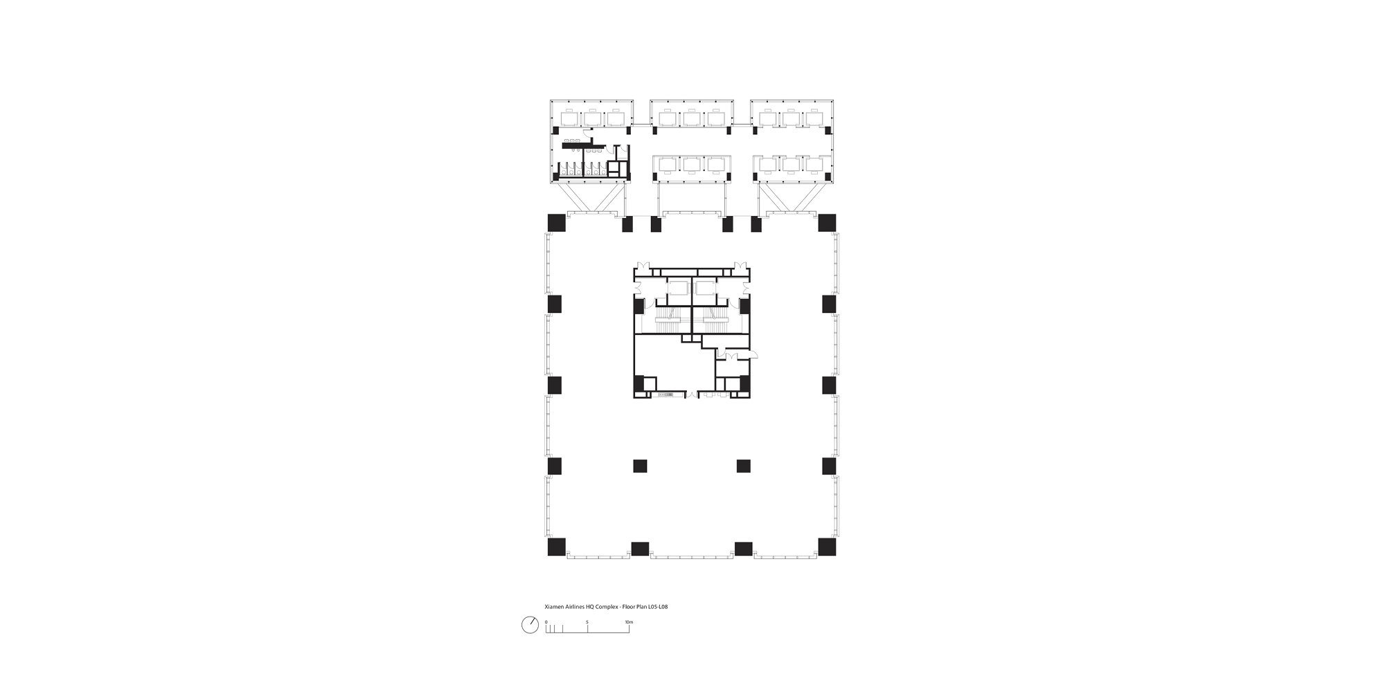
Placing the lift cores on the outside of the tower gives the structure a unique form and a flexible, open floorplate. This approach is an evolution of the conventional office layout, to allow more connectivity with the outside, whilst maximising views and daylight via large bay windows.
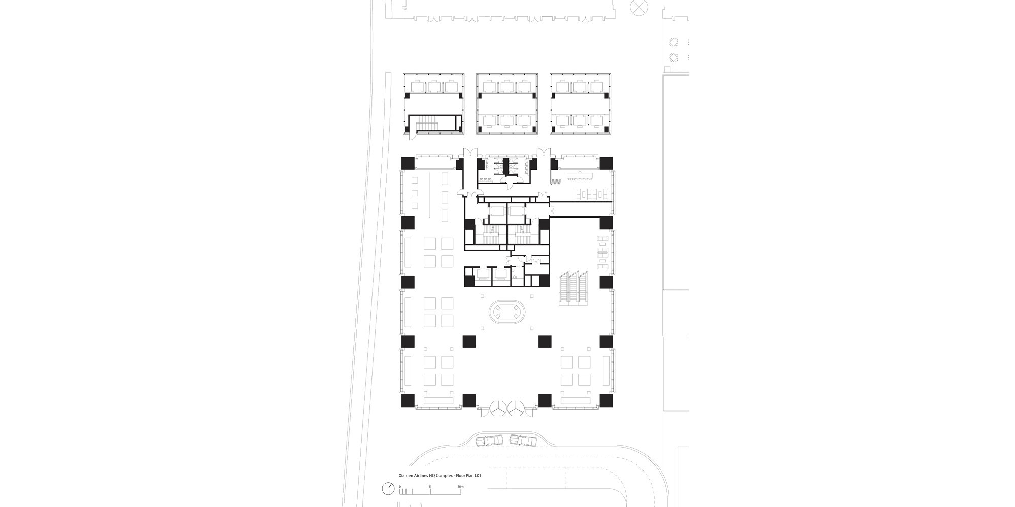
The entrance lobby is a grand, 24-metre-tall space that visually and physically connects with the plaza at the heart of the masterplan. The plaza links together the headquarters and the hotel, creating a more inclusive arrival experience for all. The headquarters features sky gardens, restaurants, bars, and exhibition areas across multiple levels.


































